Rodinný dům Almeira

Naše domy

Rodinný dům Almeira Rodinný dům Almeira Rodinný dům Almeira Rodinný dům Almeira

Základní informace

  • Cena s DPH: 6 360 000 Kč
  • Plocha: 120,0  m2
  • Dispozice: 4+1
  • Energ. štítek: B
  • Budova:cihlová
  • Topení:Jiné
  • Počet ložnic:4

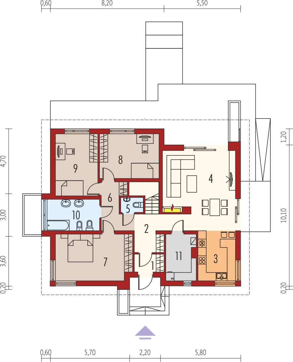
Návrh domu Almeira je perfektním řešením pro klienty se středně širokým pozemkem. Dům má jednoduchý tvar a dispozici 4+1 o užitné ploše 120m2, takže jeho stavba nebude vyžadovat velké finanční prostředky. Zajímavým řešením je ozdobný arkýř zahrnutý architektem. Projekt má hřeben umístěný souběžně s komunikací, což je důležité vzhledem k požadavkům uvedeným v plánu územního rozvoje. Je určen pro samostatně stojící stavbu. Je také výbornou variantou pro lidi, kteří hledají dům s plášťovou střechou, která dokonale ochrání stavbu před nepřízní počasí. Projekt Almeira je jednopodlažní dům, díky kterému je komunikace mezi místnostmi velmi pohodlná. Architekt počítal s možností rozvoje podkroví, takže v případě potřeby v budoucnu lze v tomto patře vybudovat další místnosti. Design domu se vyznačuje prostorným obývacím prostorem. Uzavřená kuchyně nabízí neomezené možnosti uspořádání, protože její styl nemusí odpovídat stylu obývacího pokoje. Navíc je zde prostor pro stůl, což usnadňuje společné rodinné stolování. Možný krb v obývacím pokoji zútulní interiér. Projekt počítá s jednou koupelnou a samostatnou toaletou v přízemí. Dům má tři pohodlné ložnice, což z něj činí vynikající volbu pro rodinu čítající 2-4 osoby. Prostor lze využít i jako pokoj pro hosty nebo pracovnu. Terasa u domu je ideálním místem k odpočinku. Projekt byl vytvořen pro investory, kteří plánují stavbu domu zděnou technologií. Jeho vnější vzhled zvýrazňuje rysy typické pro tradiční styl, takže bude vypadat skvěle bez ohledu na okolí. Do projektu je možné zapracovat klientské změny. Samozřejmostí změn v projektu je možnost zrcadlového provedení. Připravíme profesionálně zpracované podklady pro stavební řízení a zajistíme provádění technického dozoru investora a komunikací se stavebním úřadem. Pro pohodlné užívání domu Vám navrhneme optimální způsob vytápění a větrání pro využití dotačních titulů. Dále návrh interiéru včetně úpravy exteriéru a mnoho dalších doprovodných služeb pro snadné jednání s bankou v rámci sjednání hypotéčního úvěru a jeho následného čerpání.